TO GIVE
CONTACT

EXPLORE. INSPIRE. FLOURISH.

Choose the Independent Living Residence That’s Right for You

Explore our maintenance-free floor plan options to find the perfect fit for your active lifestyle
Take a closer look at one of the many floor plans you can choose from.

Currently, our featured floor plan is the Dogwood, a two-bedroom, two-bath residence with a spacious kitchen and large great room.

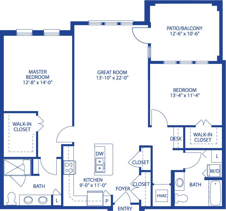
THE willow

1-bedroom, 1 ½ bath with den, 993 sq. ft.

Features a den that can be used as an entertainment or office space, hobby room or guest room. You will also enjoy a patio or balcony that’s perfect for a morning cup of coffee.

Download Floor Plan
Download All Floor Plans

The magnolia

2-bedroom, 2 bath, 1,351 sq. ft.

The kitchen opens into a spacious great room, creating a welcoming space for relaxing and entertaining. And you don’t have to worry about all the housekeeping, because we take care of that for you.

Download Floor Plan
Download All Floor Plans

The oak

2 bedroom, 2 bath with den, 1,587 sq. ft.

You will enjoy a large great room and have ample space for a dinner party in the dining room. Enjoy the large kitchen with pantry and spacious walk-in closets in both bedrooms.

Download Floor Plan
Download All Floor Plans

The sequoia

2-bedroom, 2 bath with den, 1,587 sq. ft.

Large two-bedroom residence with a den/media room in addition to the sizeable great room. This residence also features two patio/balconies for enjoying your morning cup of coffee outdoors.

Download Floor Plan
Download All Floor Plans

The chestnut

2-bedroom, 2 bath with den, 1,715 sq. ft.

Take pleasure in all of the natural light from the large windows of this two-bedroom residence with a large open floor plan and high ceilings. This residence also features a den that can be used as a third bedroom.

Download Floor Plan
Download All Floor Plans

The hawthorn

2-bedroom, 2 bath with sunroom, 1,838 sq. ft.

Enjoy the substantial open floor plan of this two-bedroom residence that offers a relaxing sunroom, large patio/balcony and sizeable master suite. You’ll love the walk-in closet and double-basin sink.

Download Floor Plan
Download All Floor Plans
YOUR NEXT STEP

Monthly independent living fees begin at $3,355 per month for one person ($1,760 second person fee), depending on the residence. Rates are subject to periodic review. Contact us to learn more and take the next step in your journey.

Download our Cost Comparison Guide to review the difference between your current living arrangement with Independent living at Aberdeen Heights. To explore additional tools and resources, please visit our Resources page.
INDEPENDENT LIVING AT ABERDEEN Heights
DISCOVER THE WAY YOU WANT TO LIVE
Schedule a Tour